Umbau und Erweiterung Volksbank eG, Villingen-Schwenningen, 2007-2012
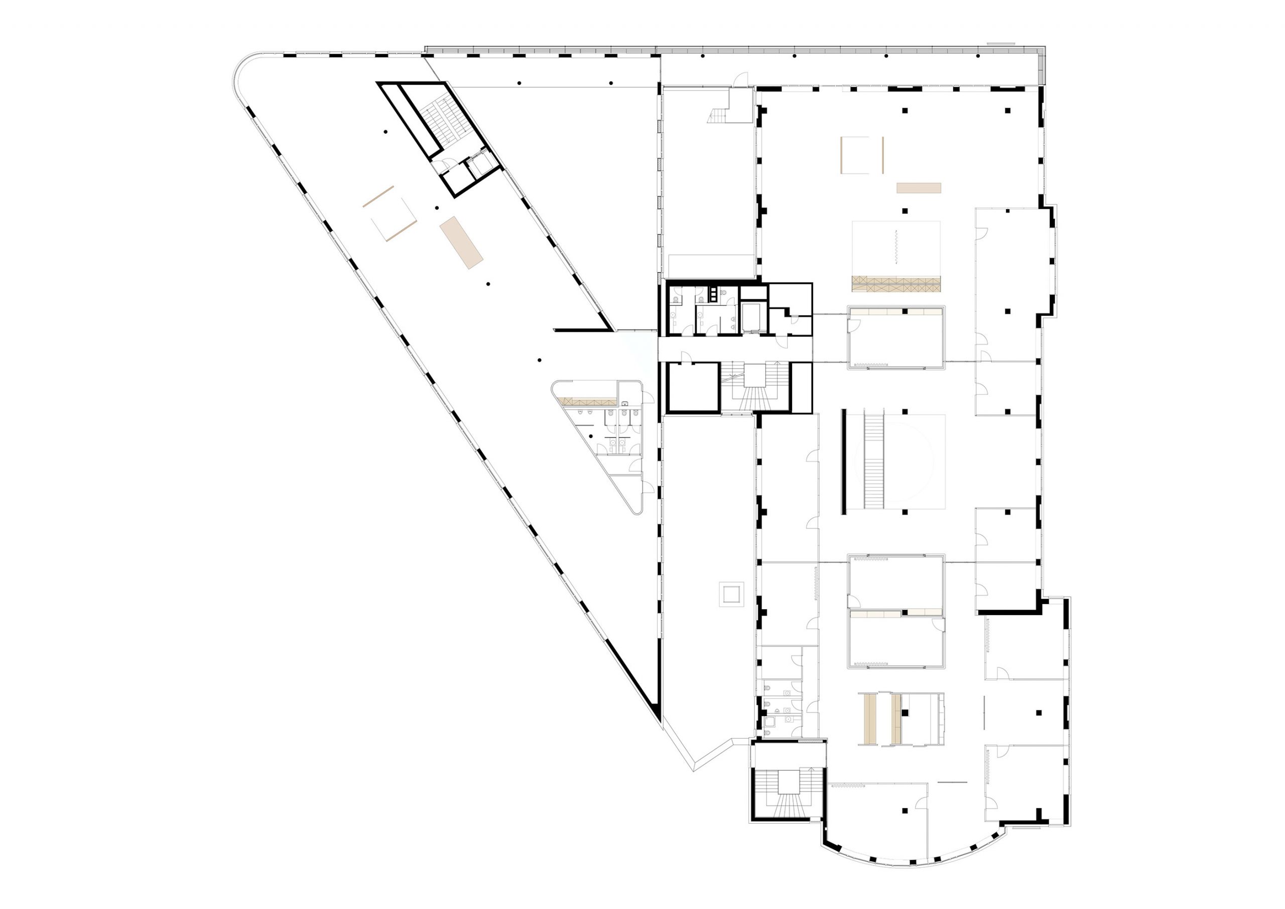
Das bauliche Konzept der Erweiterung definiert eine den westlichen Grundstücksbereich aufnehmende Form. Diese dockt an das bestehende aussenliegende Treppenhaus des Bestandes an. Es entsteht somit ein Miteinander von bestehendem und neu definiertem baulichen Gepräge. Durch die Übernahme der Traufkante des Bestands wird ein Miteinander der Baukörper bewirkt, welches der kleinmasstäblichen Situation der Schillerstrasse gerecht wird. Durch die Zuwendung des Haupteingangs zur Parkierungsfläche wird die städtebauliche Bedeutung dieses Raumes signifikant; diese wird entscheidend durch das verbindende Erschliessungselement des Bestands- und Neubaus in der Massstäblichkeit des durchlaufenden Fassadenbildes als Pendant zum bestehenden Marktkauf-Gebäude noch verstärkt.
Die Fassadenstruktur des Neubaus, beginnend in der Schillerstrasse, wickelt sich wie ein „Band“ um die konstruktiven Fassadenelemente des Neubaus und der Eingangsfassade des Altbaus und lassen durch die transparente Ausbildung der zweiten Schale die beiden Baukörper als Einheit erscheinen. Dieses „Fassadenspiel der Umhüllung“ wäre im Rahmen einer vorstellbaren Kostensituation zugunsten einer Gesamt-Lösung als Einheit auch erweiternd bis zur Vertikalen des „Vorstands-Erkers“ in der Benediktinerring-Fassade denkbar! Der Erweiterungsbau erhält eine Innenhofstruktur, die als Eventfläche und erweiterbares Cafe nutzbar ist und sich über die vorgelagerte Fassade mit ihren öffenbaren Elementen in die Aussenfläche verlagert und diese somit belebt.
Das vorhandene „Baumgrün“ der Schillerstrasse erfährt eine Erweiterung in einer Platzbildung im nordwestlichen teil des Grundstücks und dient als „Schattenspender oder Baumdach“ für eine Aussenfläche des Cafes.
Der Entwurf sucht Signifikanz und eine eigene, eindeutige Identität für ein baulich unbestimmtes und heterogenes Umfeld. Städtebauliche Struktur, Architektur, Funktion und inhaltliche Zielsetzung ergeben ein zusammenhängendes Bild, welches der Gesamtsituation – bestehend aus Bestand und spitz zulaufendem Erweiterungskörper – einen eigenständigen Charakter verleiht und dem Volksbankgebäude dadurch zu einer Unverwechselbarkeit als „Wahrzeichen im öffentlichen Raum“ verhilft.
Mehrfachbeauftragung
10/2007 – 1. Preis
Fertigstellung
11/2012
Bauherr
Volksbank eG, Villingen-Schwenningen
Standort
Am Riettor 1, 78048 Villingen-Schwenningen
Baukosten
ca. 22,5 Mio. €
Leistungsphasen
1-9
Projektmanagement
Prüfer Projektmanagement u. Baucontrolling, Niedereschach
Tragwerksplaner
Breinlinger Ingenieure Hoch- und Tiefbau GmbH, Tuttlingen
HLS-Planung
Ingenieurbüro Liebert Versorgungstechnik GmbH, Hüfingen
Elektroplanung
IBB Burrer & Deuring Ingenieurbüro GmbH, Ludwigsburg
Architekturfotografie
Brigida González, Stuttgart
Weitere Projekte
