Neubau „Volksbank-Forum“, Wendlingen am Neckar, 2021-2024
Wo Infrastruktur, Architektur und Stadtentwicklung ineinandergreifen, entsteht mehr als nur ein Gebäude: Es wächst ein identitätsstiftender Ort.
So lässt sich der Neubau der Volksbank Mittlerer Neckar eG in Wendlingen beschreiben – ein Projekt, das nicht nur durch seine räumliche Präsenz am westlichen Stadteingang, sondern auch durch seine konzeptionelle Tiefe und planerische Sorgfalt besticht.
Ein Projekt mit urbanem Anspruch
Aus einem europaweiten Realisierungswettbewerb hervorgegangen, setzt der Entwurf ein deutliches Zeichen an der Nahtstelle zwischen Innenstadt und der zukünftigen Konversionsfläche des Otto-Quartiers. Auf einem rund 4.955 m² großen Grundstück entsteht ein multifunktionaler Verwaltungskomplex, der verschiedene interne Abteilungen der Volksbank, ein Schulungs- und Konferenzzentrum, ein Polizeirevier sowie vermietbare Büroflächen unter einem Dach vereint. Dabei verfolgt der Entwurf ein übergeordnetes Ziel: Synergien schaffen – funktional, wirtschaftlich und architektonisch. Der Neubau bündelt bisher verteilte Einheiten der Bank an einem Standort und stärkt durch klare räumliche Strukturen und flexible Nutzungskonzepte die interne Zusammenarbeit.
Architektur als Haltung: Offenheit, Flexibilität, Nachhaltigkeit
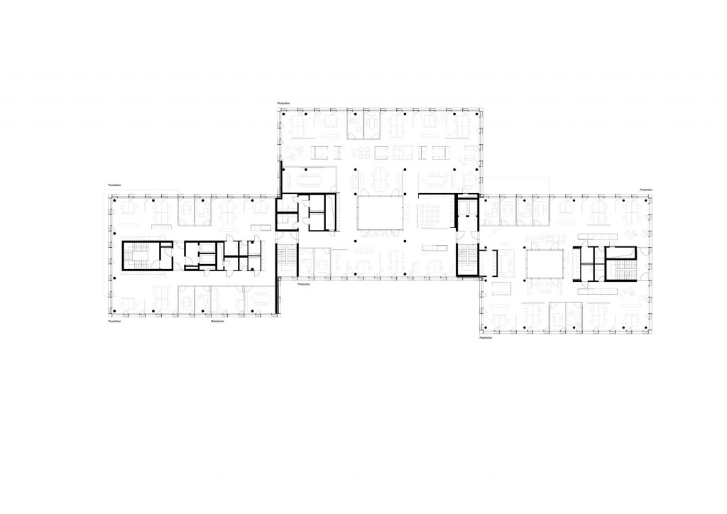
Der Neubau versteht sich als moderne Arbeitswelt mit menschlichem Maß. Großzügige Bürostrukturen, offene Grundrisskonzepte und natürlich belichtete Innenhöfe erzeugen eine Atmosphäre, die auf Austausch, Konzentration und Wohlbefinden gleichermaßen zielt. Die Raumtiefen variieren zwischen 7,80 m und 21,00 m und lassen eine Vielzahl an Büroformen zu – von Einzelbüros bis zu Open-Space-Strukturen. Die Raumplanung wurde gemeinsam mit der Volksbank in mehreren Workshops abgestimmt und in einem präzise gegliederten Flächenkonzept verankert. Nicht nur innen, auch außen steht Offenheit im Fokus: Die Architektur öffnet sich zur Stadt. Drei skulptural gestaffelte Baukörper – vom viergeschossigen Volumen bis zum achtgeschossigen Hochpunkt mit Technikgeschoss – strukturieren das Ensemble. Ein zentraler Eingangsplatz im Nordosten bildet die kommunikative Mitte, von der aus Volksbank, Konferenzbereiche und Cafeteria erschlossen werden. Im Westen öffnet sich das Gebäude zur Stadt mit einem markanten Hochpunkt und einem separaten Eingang für Polizei und Fremdnutzung.
Ein städtebauliches Statement
Das Projekt nutzt die exponierte Lage zwischen Bahnhofstraße und Stuttgarter Straße nicht nur pragmatisch, sondern symbolisch. Der Neubau positioniert sich als städtebauliche Setzung am Eingang der Stadt – als markantes Bauwerk, das Orientierung bietet und gleichzeitig Vermittler ist: zwischen dem infrastrukturellen Kontext der Brücke, der heterogenen Nachbarschaft und der künftigen Entwicklung des Bahnhofsquartiers. Die Höhenentwicklung des Baukörpers reagiert auf die topographischen Gegebenheiten des Grundstücks, das sich von Westen nach Osten leicht ansteigend präsentiert. Durch die bewusste Staffelung der Baukörper entsteht eine kraftvolle Silhouette, die das Stadtbild prägt und rhythmisiert.
Technische Intelligenz trifft gestalterische Klarheit
Die äußere Erscheinung des Gebäudes ist geprägt durch eine horizontal und vertikal gegliederte metallische Fassadenstruktur. Diese wird durch einen Wechsel von transparenten, festverglasten Fensterflächen und opaken Lüftungsflügeln mit vorgelagerten BIPV-Modulen rhythmisiert. Die Verwendung von Recyclingbeton als Primärmaterial sorgt für strukturelle Klarheit und ermöglicht mit Verbundstützen und Flachdecken ein hohes Maß an Flexibilität im Innenausbau. Ein zentrales Rastermaß von 1,35 m bzw. 2,70 m bildet die Grundlage der baulichen Organisation. Vier Haupttreppenhäuser – ergänzt durch Aufzüge – erschließen das Gebäude vertikal. Besonders hervorzuheben ist das Sicherheitstreppenhaus im Hochhausbereich mit eigenem Feuerwehraufzug. Die horizontale Erschließung aller Nutzungseinheiten verläuft entlang der Zentralachse der sich versetzenden Gebäudevolumina und bindet alle Nutzflächen barrierefrei an.
Green Building
Nachhaltigkeit ist ein zentraler Leitgedanke des Projekts. Neben dem Einsatz ökologisch unbedenklicher und dauerhafter Materialien wird das Gebäude als nahezu Null-Energie-Haus betrieben. Ein extensiv begrüntes Dach, die Verwendung recycelter Baustoffe (z. B. Recyclingbeton, Cradle-to-Cradle zertifizierte Ausbau-Materialien) sowie gebäudeintegrierte Photovoltaikelemente erfüllen in hohem Maße ESG-Kriterien. Das Gebäude befindet sich aktuell im Freigabe-Prozess der DGNB- Zertifizierung und wird eine DGNB-Platinum erreichen.
Die technische Ausstattung entspricht höchsten energetischen Standards:
– Energiegewinnung über Photovoltaikanlagen auf Dach und Fassade (BIPV-Paneele)
– Nutzung geothermischer Energie für Heizung und Kühlung
– Baukörperaktivierung sowie Heiz- u. Kühldeckensegel für Spitzenlast-Abdeckung
– hocheffiziente Lüftungsanlagen mit Wärmerückgewinnung
– LED-Beleuchtung mit Präsenz- und Tageslichtsteuerung
– intelligente Gebäudeautomation
Ein Ort für heute – und morgen
Mit dem Neubau schafft die Volksbank Mittlerer Neckar eG einen zukunftsfähigen Ort der Arbeit, der weit über klassische Verwaltungsarchitektur hinausreicht. Es ist ein Gebäude, das Wandel zulässt, aber Haltung zeigt – in seiner Architektur ebenso wie in seiner Funktion. Ein Projekt, das dem Stadtbild von Wendlingen ein neues Gesicht verleiht und dabei auf nachhaltige Weise auf die Herausforderungen urbaner Entwicklung antwortet.
Wettbewerb
07/2020 – 1. Preis
Fertigstellung
2021-2024
Bauherr
Volksbank Mittlerer Neckar eG, 72622 Nürtingen
Standort
Bahnhofstraße 40/42, 73240 Wendlingen am Neckar
Baukosten
ca. 85,0 Mio. €
Leistungsphasen
1-8
Projektsteuerung
Drees & Sommer SE, Stuttgart
Tragwerksplanung
Bollinger + Grohmann GmbH, Stuttgart
HLSK-Planung
Keppler + Kähn GmbH, Ulm / Leinfelden-Echterdingen
Elektroplanung
IGW Ingenieure GmbH, Herrenberg
Landschaftsarchitektur
GLA, Schorndorf
Leitsystem
Büro Uebele, Stuttgart
Generalunternehmer Ausführung
Ed. Züblin AG, Stuttgart
Architekturfotografie
Brigida González, Stuttgart
04.2024 – Baustellenbesuch Neubau Volksbank Mittlerer Neckar eG, Wendlingen a.N.
Aufnahmen vom 20.04.2024, © Muffler Architekten PartG mbB
Weitere Projekte
