Festhalle „Neckarhalle“, Villingen-Schwenningen, 2016-2019
Im Rahmen der Landesgartenschau 2010 wurde auf dem freigewordenen Güterbahnhofareal der vom „Schwenninger Moss“ aus Richtung Süden in die Stadt Schwenningen fließende Grünzug bis in deren Stadtmitte fortgesetzt. Die bis dahin schon bestehenden Grünräume im Bereich „Bauchenberg“ und auf der „Möglingshöhe“ wurden um den neu entwickelten Grünflächen erweitert. Alle drei Bereiche werden durch die Renaturierung der Neckaraue miteinander verbunden. Dadurch entstand der Landschaftspark „Neckarpark“, in dem sich auch der Neubau der Festhalle „Neckarhalle“ platziert.
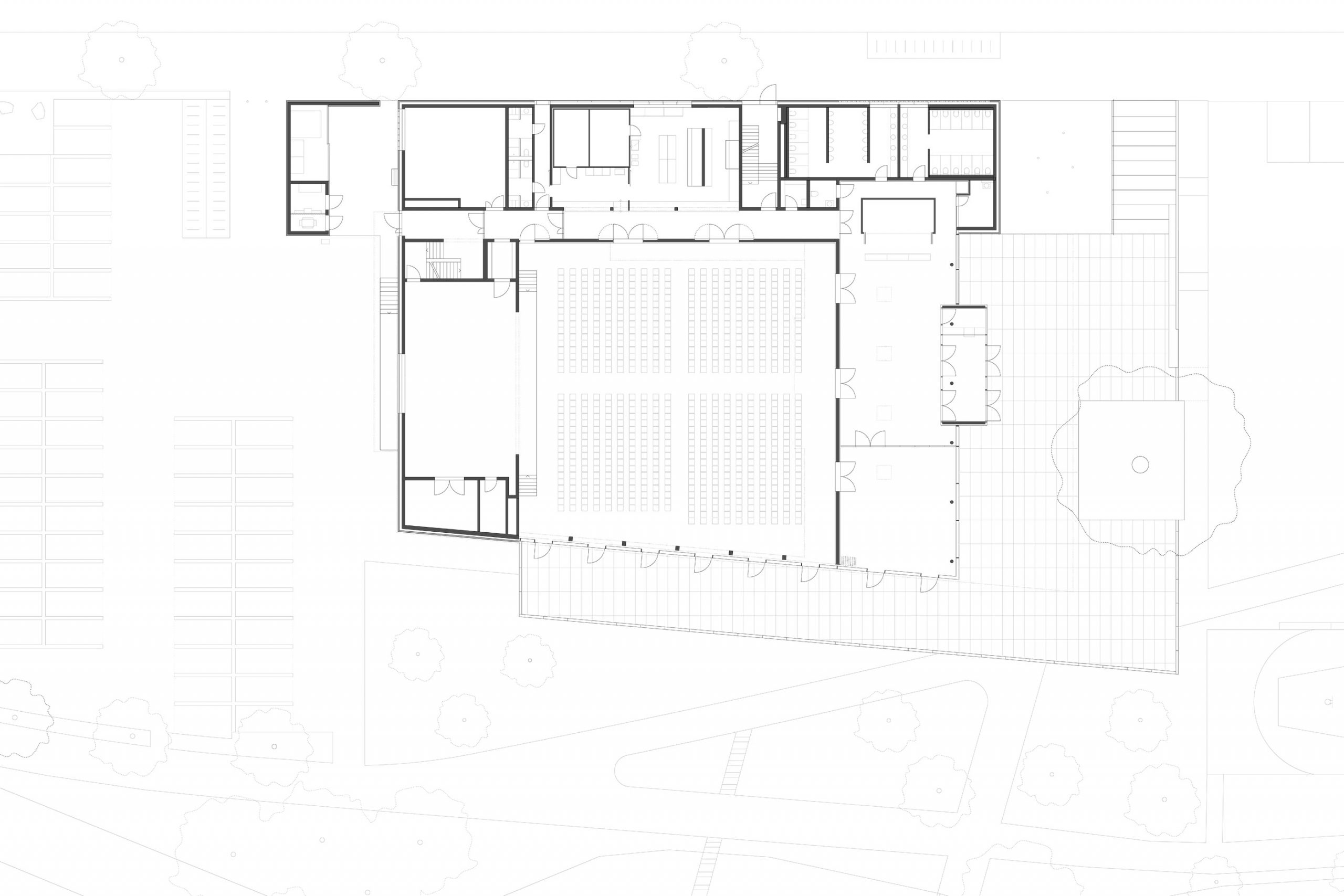
Der Baukörper orientiert sich in Nord-Süd Richtung. Die Längsachse legt sich an die Neckarstrasse an. Hierdurch bleibt ein grosszügiger Aussenraum zum westlich angrenzenden Neckar, der Platz für die Weiterführung des bestehenden Neckarparks bis zum Neckartower hin lässt. Die bestehende Parkierungsanalage wird durch den Baukörper zum Neckarpark hin abgeschlossen. Eine räumliche Beziehung, durch die gegebenen landschaftsplanerischen Möglichkeiten, wird zum bestehenden Wegesystem des Landschaftsparks unterstützt. Es wird durch die Situierung des Baukörpers sowohl eine räumliche Anbindung des Parkplatzes und dessen Integration in das bauliche Gefüge, wie auch eine gute Verbindung zur Innenstadt von Schwenningen erreicht. Die bestehende Bahnunterführung wird mit dem Brückenschlag über den Neckar hinweg aufgenommen und zum Eingangsplatz weitergeführt. Durch eine Orientierung des Baukörpers, ist die Möglichkeit gegeben, den bestehenden Walnussbaum zu erhalten. Das bauliche Gefüge der Entwurfs entwickelt sich in linearer Form und räumlich entlang der Neckarstrasse.
Die Nebenraumspange bildet zu dieser den Übergangsbereich. Sie entwickelt sich über zwei Geschosse und nimmt im Erdgeschoss alle dienenden Räume wie Küche, Sanitärräume und Lagerflächen auf. Im Obergeschoss sind neben den Künstlerumkleideräumen und dem Hallenmeister alle notwendigen Technikräume zur Versorgung des Gebäudes untergebracht.
Der Saalbaukörper mit Foyer, Mehrzweckraum und Bühne wird über die Erschließungsfläche getrennt an diesen angedockt. Foyer, Mehrzweckraum, Grosser Saal und Bühnenbereich organisieren sich linear von Süden nach Norden. Das Foyer wird über den Eingangsplatz erschlossen, welcher sich dem Neckarpark zuwendet.
VgV-Verfahren
12/2015 – 1. Rang
Fertigstellung
03/2019
Bauherr
Stadtverwaltung Villingen-Schwenningen, 78054 Villingen-Schwenningen
Standort
Neckarstraße 30, 78054 Villingen-Schwenningen
Baukosten
ca. 12,4 Mio. €
Leistungsphasen
1-9
Tragwerksplaner
Isenmann Ingenieure GmbH, Villingen-Schwenningen
HLS-Planung
Ingenieurbüro André E. Schwarz, Villingen-Schwenningen
Elektroplanung
plus-energie GmbH, Villingen-Schwenningen
Bauphysik
ebök Planung und Entwicklung GmbH, Tübingen
Bühnentechnik
Meine Mediatec GmbH, Wernau
Küchenplanung
MEGA, Fachzentrum für Metzgerei und Gastronomie GmbH, Stockach
Architekturfotografie
Muffler Architekten PartG mbB
Weitere Projekte
