Ersatzneubau Ganztagsgymnasium, Osterburken, 2020-2024
Ein Lernhaus im ländlichen Raum – Der Neubau des Ganztagsgymnasiums Osterburken
Mit dem Ersatzneubau des Ganztagsgymnasiums Osterburken entsteht weit mehr als ein funktionales Schulgebäude: Es wächst ein architektonisches Statement für eine Bildungslandschaft, die auf Offenheit, Gemeinschaft und Selbstwirksamkeit setzt. Im ländlich geprägten Einzugsgebiet gelegen, ist das Gymnasium nicht nur Schule, sondern ganztägiger Lebensraum – ein zweites Zuhause für viele der Schülerinnen und Schüler, deren täglicher Schulweg oft mehr als eine Stunde in Anspruch nimmt.
Pädagogik als architektonischer Leitfaden
Seit über 50 Jahren verfolgt das GTO das Modell der gebundenen Ganztagsschule – mit einem besonderen Fokus auf kulturelle Bildung, individueller Förderung und einer starken Gemeinschaft. Der pädagogische Anspruch ist ambitioniert: Lernen soll nicht isoliert, sondern eingebettet in ein aktives, förderndes und zugleich schützendes Umfeld stattfinden. Der neue Schulbau greift diesen Leitgedanken auf und überträgt ihn konsequent in bauliche Strukturen. Die Schule wird zum „Lernhaus“, einem Mikrokosmos, in dem sich Alltag, Freizeit, Rückzug und Begegnung in einem architektonischen Gefüge verdichten.
Die Grundidee ist geprägt von Transparenz, Offenheit und Nähe: Lehrerzimmer, Verwaltung und Direktion bleiben zugänglich, Schwellen werden abgebaut – räumlich wie sozial.
Städtebau: Vom Schulgebäude zum Campus
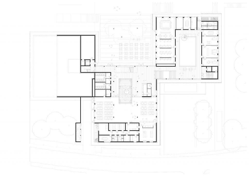
Der Ersatzneubau fügt sich in eine sensible Topographie ein – an einem abfallenden Hang südlich des bisherigen Gebäudes, angrenzend an die Hemsbacher Straße. Weil der Altbau während der Bauzeit in Betrieb bleibt, war eine klare Trennung in der Umsetzung notwendig. Doch genau dieser Zwang wurde zur Chance: Die Architekten entwickeln eine dreiteilige, gegeneinander versetzte Baukörperstruktur, die Höfe mit unterschiedlichen Nutzungsqualitäten entstehen lässt.
Der südöstliche Haupteingang, ein zweiter Zugang vom nördlichen Bushalt, sowie eine durchgängige Verbindung zum Bestand schaffen eine durchlässige Campusanlage. Eine pergolaartige Struktur markiert den Übergang zur Sport- und Schwimmhalle und verbindet Alt- und Neubauten zu einem klar gefassten Ensemble. Die Freiräume – Amphitheater, Baumhain, landschaftlich orientierter Schulhof – definieren dabei nicht nur Zwischenräume, sondern prägen den Campuscharakter nachhaltig.
Innenleben: Architektur als soziale Bühne
Der Neubau orientiert sich entlang einer zentralen Erschließungsachse. Diese verbindet die drei Baukörper funktional und schafft dabei Orte der Begegnung. Der östliche Trakt beherbergt die Aula – Herzstück und Bühne der Schule zugleich. Musikräume und Bühne lassen sich zur Aula hin öffnen und schaffen ein räumlich und akustisch variables Format für Veranstaltungen, Projekte oder spontane Nutzung.
Die Mensa – zentral angebunden und zum grünen Außenraum orientiert – ist mehr als ein Speisesaal: Sie ist Aufenthaltsraum, Treffpunkt, stiller Lernort und Kommunikationsplattform. Ebenso wie die Bibliothek, die Rückzugsräume in den Obergeschossen oder die offenen Lernflächen in den lichtdurchfluteten Lichthöfen.
Die Klassenzimmer, vor allem für die jüngeren Jahrgänge, sind als „Heimaträume“ gedacht – Orte der Vertrautheit, die in Pausen offenbleiben und individuell genutzt werden können. Auch hier gilt: Raum ist Beziehungsstifter. Offenheit, Blickbeziehungen und Rückzugsangebote bilden keine Gegensätze, sondern ein fein austariertes Miteinander.
Tektonik: Einfache Mittel, starke Präsenz
Der architektonische Ausdruck des Neubaus setzt auf ruhige Klarheit. Die drei Volumen aus Holz und Beton werden von großzügigen Fensterflächen durchzogen, die Innen- wie Außenräume mit Licht fluten. Die elementierte Holzfassade folgt einem modularen System, das Transport, Montagefreundlichkeit und Wirtschaftlichkeit miteinander vereint. Überkragende Betondecken – 1,30 Meter tief – schützen die hölzernen Fassadenelemente vor Witterung und verleihen dem Baukörper zugleich Tiefe und Gliederung.
Die Tektonik bleibt lesbar, die Materialität spricht eine ehrliche Sprache. Die Schule zeigt, was sie ist: ein Ort der Stabilität und Entwicklung, der sich nicht in pädagogischen Floskeln verliert, sondern ein stimmiges räumliches Angebot formuliert. Ruhe und Präsenz – beides wird architektonisch erlebbar.
Schule als Lebensraum – ein gebautes Leitbild
Der Neubau des Ganztagsgymnasiums Osterburken soll mehr sein als ein gelungenes Beispiel für zeitgemäße Schularchitektur. Er ist Ausdruck eines pädagogischen Selbstverständnisses, das Schule als sozialen Raum begreift, als Ort der Mitgestaltung, der Entwicklung und des Zusammenlebens. Hier verschwimmen die Grenzen zwischen Lernen, Leben und Freizeit nicht aus Unschärfe, sondern aus Überzeugung. Wie Heidegger’s Idee vom „Behaustsein“ prägt dieser Bau einen Ort, der Heimat im besten Sinne bietet – strukturiert und frei, geschützt und offen zugleich. Im ländlichen Raum wird so ein zukunftsweisender Maßstab gesetzt: für Architektur, für Bildung, für Gemeinschaft.
Wettbewerb
06/2020 – 1. Preis
Fertigstellung
2021-2024
Bauherr
Landratsamt Neckar-Odenwald-Kreis, 74821 Mosbach
Standort
Hemsbacher Straße 24, 74706 Osterburken
Baukosten
ca. 36,2 Mio. €
Leistungsphasen
1-9
Tragwerksplanung
Krebs und Kiefer Ingenieure GmbH, Karlsruhe
HLSK-Planung
Ingenieurbüro Willhaug Gebäudetechnik GmbH, Mosbach
Elektroplanung
Ingenieurbüro Metzger Beratende Ingenieure, Weikersheim
Landschaftsarchitektur
Helmut Hornstein, Überlingen
Leitsystem
Muffler Architekten PartG mbB, Stuttgart / Tuttlingen
Architekturfotografie
Brigida González, Stuttgart
Weitere Projekte
