Kompetenzzentrum Supermarkt Bundesfachschule food Akademie, Neuwied, 2018-2022
Der Neubau des Kompetenzzentrums „Supermarkt“ als Teil dieses Campus erweitert die bestehende Bebauung der food akademie Neuwied um ein L-förmiges Volumen. Dieses Volumen fasst den Freiraum zwischen dem Bestand aus „food hotel“ und dem „schwarzen“ Hauptgebäude der Lebensmittelfachschule mittels eines öffentlichen Platzes ein und bindet diese über ihre einzelnen Funktionen hinweg zusammen.
Der vorgeschlagene Baukörper besteht zum einen aus einem 3-geschossigen Riegel, der unter anderem die Funktionen der Seminarräume und des Wohnens aufnimmt. Er definiert ein städtebauliches Gegenüber zum markanten Hauptgebäude der food akademie und bildet in südlicher Richtung einen räumlichen Abschluss des Campus hin zum Besucherparkplatz.
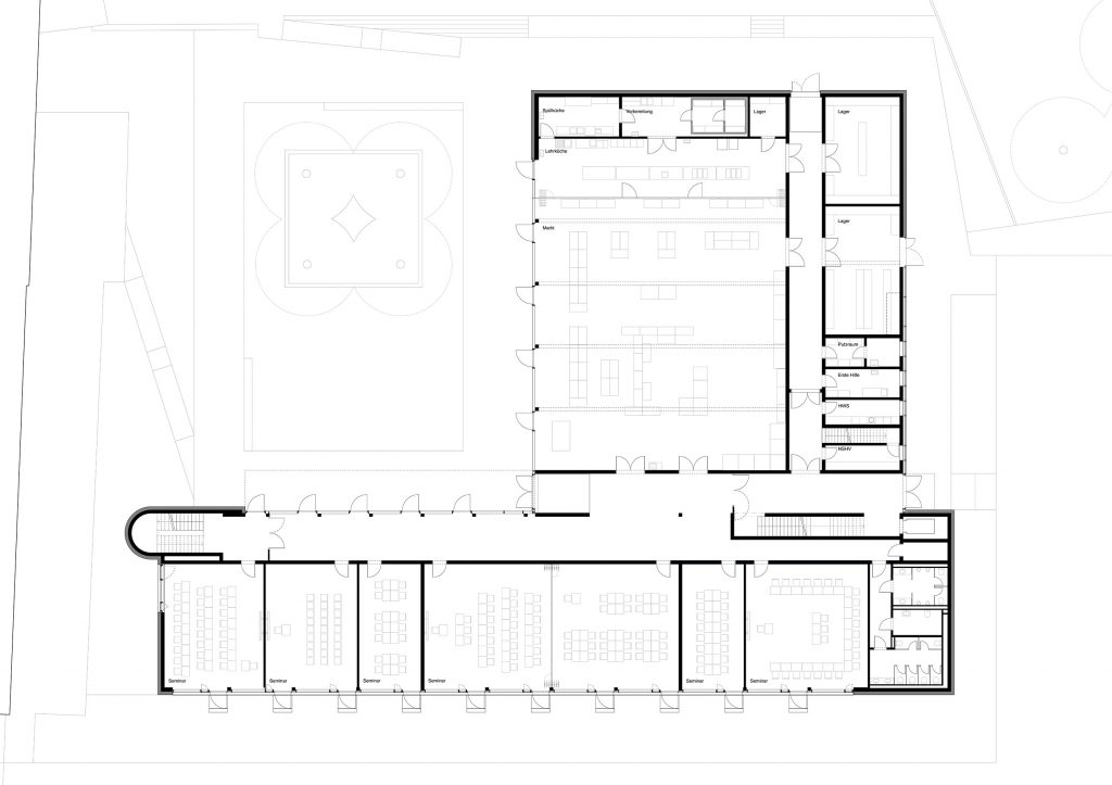
An diesen Riegel schmiegt sich ein flacher eingeschossiger Annexbau an, welcher den Lehrbetrieb in Form des Lehrsupermarktes und der Lehrküchen sowie deren Anlieferung beherbergt. An deren Schnittstelle platziert sich der Haupteingang, der über ein Vordach in das Gebäude leitet und alle Nutzungsbereiche über ein gemeinsames Foyer verbindet.
Der L-förmig angelegte Baukörper setzt sich aus einem dreigeschossigen Riegel und einem flächigeren, eingeschossigen Volumen zusammen. Im Erdgeschoss des Gebäudes befinden sich die öffentlichen Flächen. Während der Lehrsupermarkt, sowie alle ihm zugeschalteten, notwendigen Nebenräume im eingeschossigen Teil situiert sind, befinden sich die Seminarräume unterhalb des Wohnbereichs. Das Gebäude wird definiert durch einen öffentlichen Erschließungsweg, der sich genau an der Schnittstelle der unterschiedlich hohen Volumen befindet und den campusartigen Platz mit den Parkplätzen im Nordosten des Baufelds verbindet. Dieser Verbindungsweg dient gleichzeitig als Foyerfläche, sowie als Erschließung für den Lehrsupermarkt und trennt somit auch die Seminarräume von den Fachräumen räumlich ab. Diese öffentlichen Funktionen werden durch ihre großzügigen Öffnungen in der Fassade des Erdgeschosses vom Platz her ablesbar gemacht, wodurch Blickbeziehungen in den Lehrsupermarkt, sowie direktere Zugänge zu den Seminarräumen ermöglicht werden.
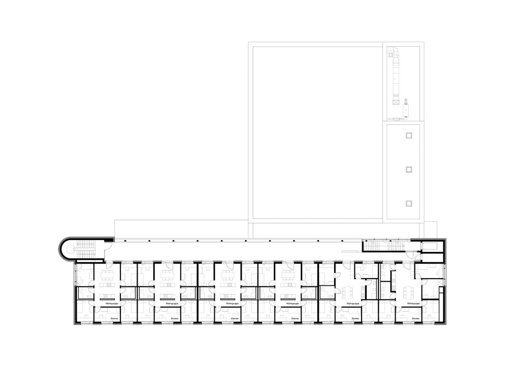
Die vertikale Erschließung erfolgt über zwei Treppen, die sich am Schnittpunkt der beiden Gebäudevolumen und am südwestlichen Ende des Riegels befinden. Das Treppenhaus der zweiten Treppe ist von außen leicht von der Fassade abgerückt und durch eine runde Form ausgestaltet, wodurch die Fassade gegliedert wird. Im ersten Stockwerk befinden sich die 15 Internatszimmer, das Zimmer für die Betreuer, sowie die diversen Aufenthaltsräume. Die Erschließung verläuft mittig, sodass die Zimmer zu beiden Seiten angeordnet sind, um eine ideale Aufenthaltsqualität zu schaffen. Die sechs Wohngruppen im zweiten Stockwerk dagegen werden nordseitig von einem Laubengang erschlossen, der sich zwischen den beiden Treppenhäusern befindet. Die Zimmer innerhalb der jeweiligen Wohneinheit sind sowohl zum Laubengang, als auch zur Südfassade hin orientiert, sodass sich im daraus ergebenden Zwischenraum der jeweilige Aufenthalts- und Küchenbereich befindet.
Wettbewerb
11/2017 – 2. Preis
Fertigstellung
2018-2022
Bauherr
food Akademie Neuwied GmbH
Standort
Friedrichstraße 36, 56564 Neuwied
Baukosten
ca. 13,6 Mio. €
Leistungsphasen
1-9
Projektmanagement
Pure Asset GmbH, Pulheim
Tragwerksplaner
Fast + Epp GmbH, Darmstadt
HLS-Planung
WPW GmbH, Saarbrücken
Elektroplanung
WPW GmbH, Saarbrücken
Küchenplanung
Transgourmet, Filderstadt
Konzeption Lehrsupermarkt
Interstore, Zürich
07.2025 – Drohnenaufnahmen Fertigstellung
Aufnahmen vom 03.07.2025, © Muffler Architekten PartG mbB
Weitere Projekte
