Neubau Verwaltungsgebäude BREMER SE, Paderborn, 2024-2026
Städtebauliche Konzeption
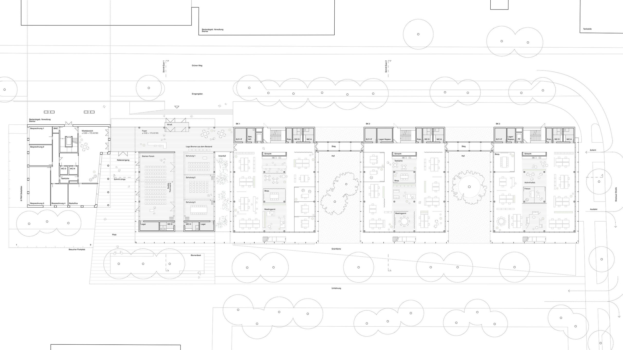
Der Umgriff des zu überplanenden Grundstücks weist, bedingt durch die industrielle und gewerbliche Nutzung, eine heterogene städtebauliche Struktur auf. Im Nord-Westen und Nord-Osten wird es durch den Grünen Weg und die Breslauer Straße begrenzt. Im Planungsbereich ist ein Höhenversprung von Süd-Westen nach Nord-Osten von ca. zwei Metern vorhanden. Der Grüne Weg wird durch eine intensive Bepflanzung mit Alleebäumen zum Grundstück hin begrenzt. Im Süd-Westen schließt die viergeschossige, brückenartig über den Grünen Weg situierte Hauptverwaltung das Planungsfeld ab. Nach Süd-Osten begrenzt eine bestehende Parkplatzfläche für LKWs das Baufeld. Der zu planende Erweiterungsbau gliedert sich in drei Bauabschnitte, welche sich entlang des Grünen Wegs situieren. Die geplanten Baukörper sind auf einem Sockel platziert, welcher die Höhe der bestehenden Hauptverwaltung aufnimmt, und entwickeln sich über vier Geschosse.
Als Verbindungsglied zum bestehenden Gebäude der Hauptverwaltung und der baulichen Erweiterung wird ein eingeschossiger pavillonartiger Baukörper angeordnet. In diesem sind neben dem repräsentativen zentralen Zugangsbereich, das Forum sowie die Räumlichkeiten der Akademie situiert. Zwischen den einzelnen baulichen Volumen werden begrünte Hofe vorgeschlagen, die sich nach Süd-Osten öffnen und nach Nord-Westen den Außenraum mit stegartigen Verbindungen über alle Geschosse hinweg abschließen. Im Sockelbereich wird optional ein Parkdeck vorgeschlagen, in welchem insgesamt ca. 51 Stellplätze untergebracht werden können.
Bis zur Vollendung aller Bauabschnitte kann die freibleibende Fläche zu Parkierungszwecken genutzt werden. Gebäudestruktur und Funktion Das Gebäude wird über das eingeschossige Eingangsbauwerk erschlossen. In diesem ist das zentrale Eingangsfoyer, sowie die Schulungsräume der Akademie und des Forums untergebracht. Diese Raumgruppe ist über flexible Trennwände der einzelnen Räume zu einem oder unterschiedlich großen Räumen variabel teilbar. Dem Forum ist ein direkter Außenraum zugeordnet, welcher durch den Vortragsraum erschlossen wird. Nach Süd-Osten ist eine Baumgruppe mit Sitzbänken situiert.
Der Eingangsbaukörper dient als räumliche Verbindung zwischen Bestand und den zu planenden Erweiterungsflächen. Diese werden durch eine klare räumliche Struktur bestimmt und über eine zentrale Achse erschlossen. Die Büroflächen werden nach Nord-Westen (zum Grünen Weg) durch einen geschlossenen Baukörper begrenzt. In diesem sind die vertikale Erschließung der Geschosse (Treppenanlagen und Aufzügen), sowie die notwendigen Nebenräume untergebracht. Die Büroflächen sind nach Süd-Osten orientiert. Begrünte Außenterrassen mit einer Fluchttreppe schließen die Büroräume zum Außenraum ab.
Die vorgeschlagenen Büroflächen lassen Raum für die Frage: „Welche Anforderungen stellen Sie an Ihr Büro, heute und morgen?“. Sämtliche heute in der Diskussion stehenden Büroformen wie Zellenbüro, Kombibüro, Open Space oder Business Club sind durch die vorgeschlagene Raumtiefe für eine zukünftige Nutzung möglich.
Materialität und Tektonik
Als Hersteller für Fertigteile versteht es sich von selbst, das Gebäude mit eigenen Produkten herzustellen. Zu beachten sind jedoch verschiedene Gesichtspunkt einer größtmöglichen CO2-Reduktion. Hierbei sind die Möglichkeiten des Struktur-Leichtbaus durch eine hohe Masseneinsparung und Optimierung der statischen Systeme (optimale Querschnittsausnutzung) umzusetzen. Um diese zu erreichen, schlagen wir den Einsatz von einachsig gelagerten Rippendecken mit einer Rippenhöhe von ca. 40 cm (inkl. Decke von 12 cm) über drei Felder mit Längen von ca. 8,10 m bzw. 5,40 m vor. Durch die hierbei zu erreichende Massenreduktion im Vergleich zu einer Massivdecke mit einer notwendigen Höhe von ca. 28 cm wird ein Einsparpotenzial von ca. 38 % CO2 erreicht. Selbst bei Einsatz einer Holz-Hybriddecke, mit einem technisch notwendigen Betonmindestaufbau von 15 cm liegt das mögliche Einsparpotential nicht höher.
Die Aussteifung der Konstruktion wird durch die vorgeschlagenen Betonmassivbauteile der Nebenbereichsspangen gewährleistet. Durch den Einsatz von Hochofenzement und RC-Material ist hierbei eine zusätzliche CO2-Reduktion von 18 % zu erreichen. Die in den Fassadenbereichen vorgelagerten Wartungsbalkone und Terrassen sind als elementierte Holzkonstruktion vorgesehen. Ebenso ist die Verkleidung der geschlossenen Baukonstruktionen im Bereich der Baukörper zum Grünen Weg mit einer hinterlüfteten Holzverschalung und ca. 25 cm Wärmedämmung aus Steinwolle angedacht. Deren Oberfläche ist aus Nachhaltigkeitsgründen mit einer entsprechen vorpatinierten Beschichtung (Farbe hellgrau) geplant. Hierdurch wird eine Kompensation von ca. 12 % CO2 erreicht.
Die Innenräume sind durch den vorgeschlagenen hohen Tageslichtanteil über die Fassadenelemente, die vorgesehenen Sichtbetonflächen und den Einsatz von hölzernen Ausbauelementen bestimmt. Im Bereich des Foyers mit Vortragsraum und Schulungsbereich sind ebenfalls Wandflächen mit einer Oberfläche aus Weißeiche angedacht. Die Bodenbeläge im Foyer, Vortragssaal und den Seminarräumen sind aus geschliffenem Terrazzo bzw. einem entsprechenden Parkettbelag angedacht.
Im Bereich der Büroflächen ist als Bodenbelag ein farblich abgestimmter Teppichboden vorgesehen. Durch die vorgeschlagene Materialwahl, mit wenigen unterschiedlichen und nachhaltigen Materialien , werden eine ruhige und zurückhaltende Innenraumgestaltung mit angenehmer Arbeitsatmosphäre erreicht. Im Bereich der nach Süd-Osten, den Büroflächen vorgelagerten Terrassenflächen, wird eine intensive Begrünung vorgeschlagen. Diese bewirkt in den einzelnen Geschossen einen grünen Außenraum, welcher als Pausenfläche für die Mitarbeiter genutzt werden kann. Die Bepflanzung soll mit für den Standort geeigneten Pflanzen erfolgen.
Mehrfachbeauftragung
04/2024 – 1. Rang
Fertigstellung
2024-2026
Bauherr
BREMER SE
Standort
Grüner Weg 28-48, 33098 Paderborn
Baukosten
vertraulich
Leistungsphasen
1-4
Bearbeitung in ArGe mit:
K&V König Architekten und Ingenieure GbR, Paderborn
Weitere Projekte
